
PONTEDERA (PI)

RIF.166. PONTEDERA Frazione LA ROTTA. ESCLUSIVA DI VENDITA
APPARTAMENTO RISTRUTTURATO CON 2 CAMERE. OTTIMO INVESTIMENTO
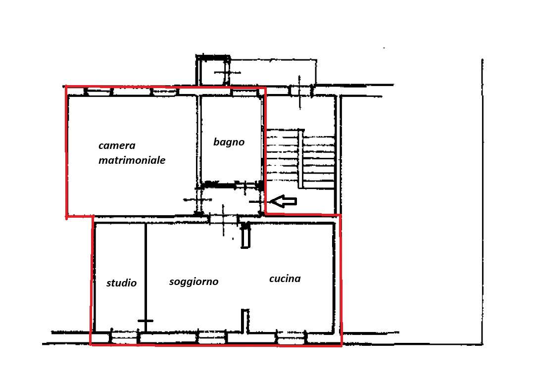
In vendita nel centro del paese di La Rotta, in zona residenziale, appartamento di 70 mq circa, ristrutturato internamente posto al 1° piano di piccola palazzina di sole 3 unità abitative.
Il grazioso appartamento è composto da ingresso, luminosa zona giorno con cucina abitabile sepata da arco in muratura, ampia camera matrimoniale, cameretta/studio e spazioso bagno con doccia e finestra.
Completano la proprietà un balcone di proprietà al piano mezzanino ed una cantinetta di 6 mq ad uso lavanderia con addolcitore.
Resede condominiale in parte ad uso parcheggio ed in parte a giardinetto.
Impianti autonomi. Classe energetica G con IPE= 190.00 RIF. 166 € 88.000 tr.